- 掲載物件数
- 593件
- 公開物件数
- 199件
- 本日の更新物件数
- 13件
【特集】新着物件特集
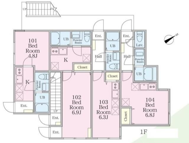
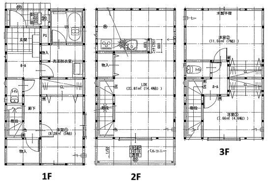
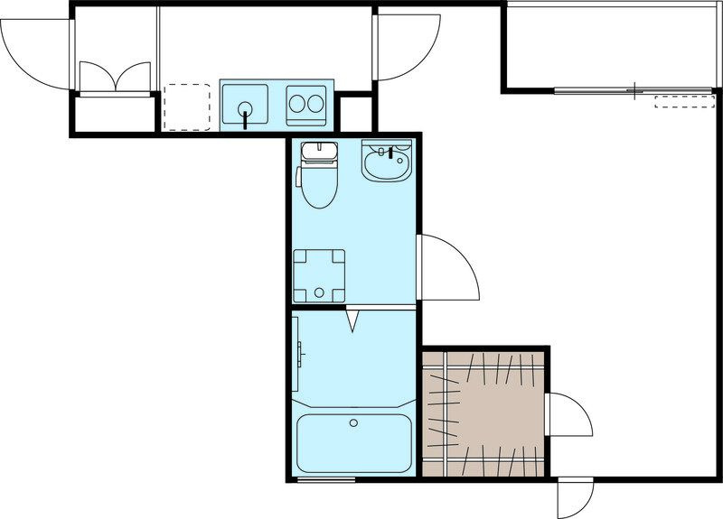
よく見られている物件POPULAR
【特集】初期費用安特集
【特集】即入居可能特集
【特集】ペット可物件
【特集】オートロック・TVモニターフォン特集
【特集】南区特集
【特集】港南区特集
更新情報INFORMATION
|
|
『重飲食テナントを受け入れる際のポイント(貸主・オーナー向け... 重飲食テナントの募集や契約には、一般の飲食店や軽飲食とは異なる注意点があります。特に臭気・煙・排水・騒音などのトラブルを防ぐために、事前に防臭・防音・ダクト設置などの条件を明確にしておくことが大切です... |
|
|---|---|---|
|
|
店舗や事務所を借りる前に、必ず確認しておきたいのが「用途地域」。この用途地域によって、建てられる建物や営業できる業種が決まっています。たとえば、住宅街の「第一種低層住居専用地域」では、飲食店や美容室な... |
|
|
|
店舗や事務所を選ぶ際は、立地や家賃だけでなく「設備」と「用途地域」にも要注意!特に飲食店などでは、ガス・排水設備・消防法の基準などを確認することが大切です。また、物件によっては「用途変更」や「消防設備... |
|
|
|
「エステートなごみが解説!敷金・礼金ゼロ物件のメリットと注意... 最近人気の「敷金・礼金ゼロ物件」。初期費用を抑えられる一方で、知っておきたい注意点もあります。--- メリット初期費用を大幅に抑えられる引越しや家具購入に費用を回せる学生や新社会人の方に特におすすめ ... |
|
|
|
最近の賃貸契約では、ほとんどの物件で「保証会社の利用」が必須になっています。その理由を簡単にご説明します。--- 大家さんの安心のため保証会社が家賃を立て替えて支払う仕組みのため、大家さんは「未払いリ... |



